Luxury Flat for Sale in Las Boas, Marina Botafoch, Ibiza
New Flat, in Las Boas Building, Marina Botafoch, Ibiza. Designed by architect Jean Nouvel, it offers a unique living experience with panoramic views of the old town of Ibiza, Formentera and the sea. The luxury flats designed and individually finished are unique. The building has the balconies of different colors and that is what makes it so original.
Las Boas building has beautiful gardens which surround the building with a lake-size swimming pool. It also has an underground garage, two saunas and a gym. All the apartments have integrated air conditioning. It is a gated community with 24 hr. security and cameras.
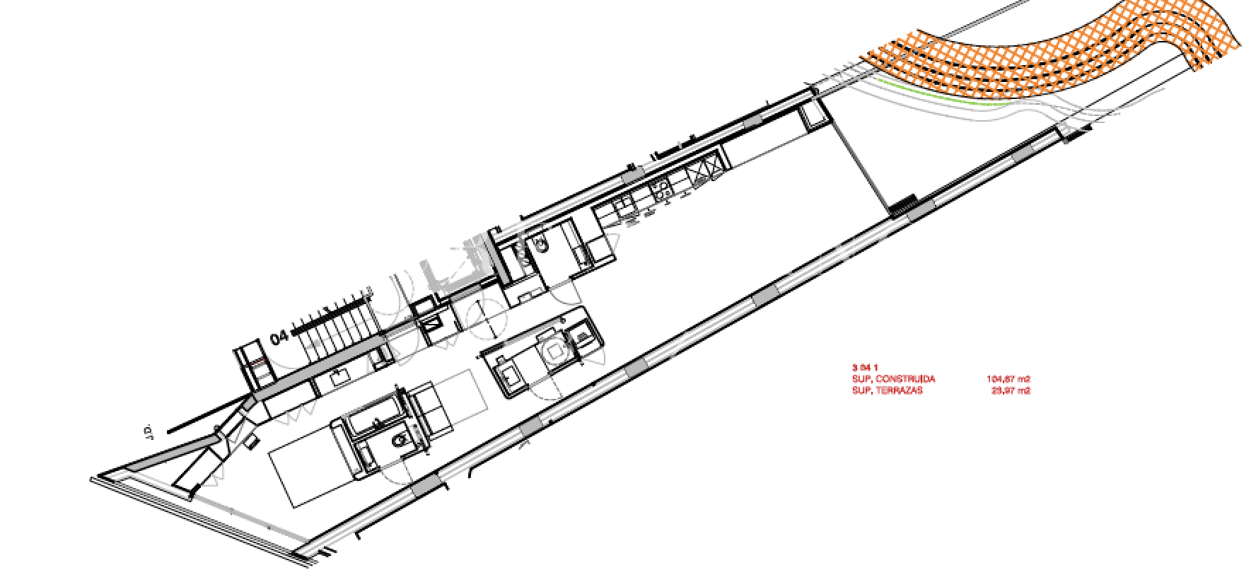
The price of this flat includes an I-Pad to control the domotics, has 105 m2 with 2 bedrooms and 2 bathrooms, a beautiful kitchen, a living room and a spacious terrace.
Listing Details
Sale Price 1.200.000 €
- Ref. ISR10423
- Ibiza
- Marina Botafoch
- Apartment
- 2 Bedrooms
- 2 Bathrooms
- 114 m² Built
- Pool
- With garage Garage
- Garden
- EPC: In Progress
Taxes & Fees
Sale price does not include costs or taxes. Additional costs for the buyer: inscription and notary fees, ITP 7% or, alternatively 10% VAT and AJD (1.2% on the purchase price) on new properties and subject to some requisites to be met. This info is subject to errors, omissions, modifications, prior sale or withdrawal from the market. Information sheet available, Decree 218/2005 Oct. 11th.
Additional Information
Air conditioning, Close to children playground, Good condition, Security service 24h.


